现在大城市的生活压力属实很大,尤其是女孩子更不容易,家里老人都说,女孩工作的再优秀,也不如嫁一个好老公有房又有车,观念如此我们无法去解释什么。
但今天,我来介绍一位广州小姐姐,她选择跟男友白手起家,不依靠任何人。买的是90年代的老公房,只因为喜欢南北通透,客厅有个大阳台,经过设计师巧妙设计,空间一点不浪费,功能也不输大户型,忍不住晒晒。

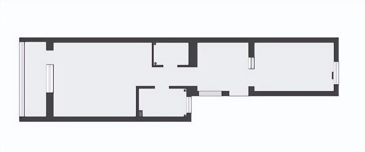
设计说明
房屋建筑面积58㎡,套内面积45㎡,南北朝向两室一厅,厨房和卫生间面积小,空间利用率低这。这个小家是他们人生的新开始,所以对生活品质要求不低。

像这样的户型,大多数人是非常不喜欢买的,连设计师都觉得不好设计,尤其是生活动线,一条走廊贯穿南北。但看了小姐姐的家,简直是太精致了。虽然是最简单,最省钱的装修,但装完的样子非常温馨、舒适,住起来十分顺心。

结合屋主的需求,设计师针对户型的缺点进行优化,改造如下:
1、南向连接阳台的做客厅,一房多用,门厅改餐厅,北向做卧室;
2、厨房做开放式设计,卫生间扩大与厨房齐平,使居家动线流畅、舒适;
3、将功能区划分后,整个空间由南向北,各种功能一应俱全,一字户型也可以通透大气又明亮。
屋内实景

打通了客厅和阳台,让阳光可以透过窗户洒进来照射在地板上,使整个空间明亮又温暖,同时用吧台功能将功能划分开,除了是一个营造情趣的地方之外,还很实用,可以安放一些小物件和一些我们平时吃喝的东西,早晨面向阳光吃个早餐,夜晚看着星空喝一杯小酒,过着慢品人生、心闲无忧的生活。

沙发背景墙刷成灰粉色,搭配灰色布艺沙发,使得空间和谐宁静,搭配风景画、鲜花、和绿植装饰,充满生机盎然。 客厅一角的写字台满足日常办公和独处空间,墙上的隔板用来摆放书籍和小摆件,即使枯燥的工作也变得温馨美好。

考虑到将来有了孩子之后,沙发打开便是一张床,又是一间独立的卧室。客厅和厨房之间是隐藏的推拉门,收起时,整个空间通透,动线流畅,合上时,保证私密空间,有张也有驰。

整面墙的储物柜,满足大容量收纳空间,也兼顾看电视的需求。白色与原木的组合,简单又实用,嵌入式设计,让空间显得不拥挤。

拆掉原来的厨房隔墙,做开放式设计,水泥色橱柜深色台面配上小白砖,小户型也有高级感。偶尔叫上好朋友,小酌半晌,一起吃个吃饭聊聊八卦,也是别有一番风味。

换个角度看开放式厨房,改完后的空间一下子大了不少,而且储物也更多了,保持空间整洁干净。
(此处已添加小程序,请到今日头条客户端查看)
另一边是双开门的冰箱,满足夫妻俩喜欢烹饪的需求。

门厅改成餐厅,靠墙一侧做卡座、吊柜配合可拉伸餐桌,虽然空间小,但该有的功能一样不少,有了这个区域,家才算完整的,正所谓人间烟火离不开一顿美味佳肴。

再小的户型也离不开玄关收纳,玄关柜旁边有换鞋凳和坐着的地方,柜子下方空出8公分也可以摆放拖鞋。使用起来非常方便。

小户型的卫生间,简单实用,卫生间舒服了,整个家也就舒服了。

餐厅往右走是卧室,榻榻米节省空间也满足睡觉的需求,也有强大的收纳功能,卧室安装投影仪,周末可以赖个床看个电影,过着惬意轻松的一天。

女主必不可少的是梳妆台,早上在这化美美的妆出门,晚上在这护肤敷面膜,满足精致生活的需求。


回过头看向南边的阳台,整面墙的鞋柜,让一家人换季的鞋子有了存放之处,不用跟其他的混在一起放在入户门口,另一边是家里的洗衣、晾晒区,尽管空间小了点,但空间利用得非常好,小而温馨,家具齐全。
版权声明:CosMeDna所有作品(图文、音视频)均由用户自行上传分享,仅供网友学习交流。若您的权利被侵害,请联系删除!
本文链接://www.cosmedna.com/article/452427629.html








 
                                             
                                             
                                             
                                             
                                             
                                             
                                             
                                             
                                             
                                             
                                             
                                             
                                         
                                         
                                         
                                         
                                         
                                         
                                         
                                         
                                         
                                         
                                         
                                        