今天和大家分享的真实人家来自成都,屋主大鹅家原始户型方正,但客厅朝东,光线被邻居家侧面遮挡,采光不足;
设计师没有大面积拆改,而是通过局部调整,提升采光,装出了一个简洁、清爽,但又烟火气十足的家。
除此之外,大鹅家物品收纳,动线规划等都充满小巧思,值得借鉴。

改造前存在的问题:
• 客厅朝东,阳台外面是别人家的侧面,光线被遮挡,采光较差;
• 主卫开门方向尴尬,浴室柜无法妥当安放。
改造前户型图
▼

改造亮点:
• 砸掉书房的墙,改为开放式,提升客厅采光;
• 改变主卫开门方向,优化卫生间布局;
• 两个卫生间都实现了干湿分离,便于日常清洁。
改造后户型图
▼

房屋位置:成都
房屋面积:建面122.5㎡ 套内100㎡
房屋户型:4室2厅2卫1厨(改造后)
装修套餐:颜值革命4.2 A系基础套餐
全屋花费:42w(硬装22w+软装10w+家具家电10w)
常住人口:2人
设计经理:李茂源
如果朋友们还想看到更多改造案例,可以私信我:案例,我们整理了:
·【真实人家案例——120+套老房改造案例】
·【100+篇设计师案例分享】
·【5000套装修效果图】

01
入户玄关

大鹅家进门左手边有一面窗户,为了不遮挡光线,放了一个低矮的换鞋凳。
她把拖鞋和常穿的鞋放在这里,进门换鞋很方便,还能顺手把包包挂在旁边的落地衣架上。

玄关处其余空间做了L型+一字型定制柜,严丝合缝,不浪费每1㎡。

大鹅说她家的鞋中等多,每个季度4-5双,希望有足够的收纳空间,把鞋都“藏”起来,这样看着利索、干净。
还需要有陈列空间,来展示她收集的陶瓷摆件、插画等。
玄关柜设计十分符合屋主的使用习惯,有充足的空间用来收纳鞋子,中间还预留了开放空间。

台面上除了插画和各种精致小摆件,还放了口红、香水、耳饰、墨镜等,旁边就是全身镜,大鹅出门前可以在这里搭配。

全身镜旁边安装了衣钩和洞洞板,挂了钥匙、口罩、皮套、小首饰等;
把这些易乱、易丢的小物件,全部集中收纳,拿取佩戴很是方便,有类似烦恼的友友可以和大鹅学起来哟。

从玄关区望向客、餐厅
▼

玄关处的地毯
▼

02
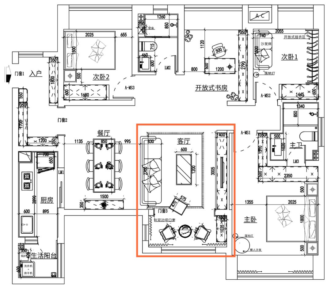
客厅+阳台

大鹅家之前是户外阳台,和客厅之间隔了一个推拉门,视野不太好,还影响采光。
改造前的客厅阳台
被邻居家侧面挡住了光线
▼

和设计师沟通后,决定把阳台包进客厅,改善光线的同时,客厅空间也更加开阔、敞亮。


家里有生活阳台放烘干机,晒衣服也在那里,封闭后的阳台主要作为休闲区。
大鹅不太喜欢囤货,只在一侧定制了家务柜,放清洁用品和杂物就足够了,用她的话来说“房子是给人住的,不是给各种纸巾的”。

另一侧放单人沙发,平常大鹅会坐在这里看书,她超爱这款沙发。
她觉得市面上好多沙发靠背都特别低,没法儿靠头,这款靠背高,可以放后脑勺,下班回家坐在这里特别放松。

客厅沙发特意选了多功能的,下面的木质搁板可以抽出来搭腿,还能变身沙发床,躺着看电视,别提多舒服了。


客厅一角
▼

03
餐厅

以沙发为分界线,后面就是餐厅区域。
大鹅家不常来客人,她就买了两把餐椅,还备了几把小圆凳,没客人时就摞起来放角落,特别省空间。


大鹅超级爱她家的餐边柜,用她的话来说就是,这玩意儿可以提升生活幸福感。
她本身对油烟有点顾虑,没选开放式厨房,好在她家餐边柜台面自带石材面板,也能满足平常切水果、做烘焙的需求。

台面上还放了饮水机、热水壶,端茶倒水很方便,不占用餐桌空间,吃饭时不用挪上挪下。

大鹅经常去参加插画艺术节、艺术书展,外加有不少朋友是插画师,她收集了好多插画,还定制了亚克力画框,餐边柜也能充当陈列展示柜。

04
厨房+生活阳台

大鹅家厨房是“一”字型布局,台面也是按照“洗-切-炒”来布置的,操作起来很顺畅。

橱柜靠近冰箱的一侧,担心开柜门会不方便,吊柜和地柜做了开放格。

PS. 大鹅有强迫症,绝不能容忍冰箱超出墙面,她费尽心思找了一款薄冰箱。

厨房有一个小的生活阳台,洗衣机、烘干机都安排在这里,还装了晾衣杆,备了落地款晾衣架,日常晾晒完全够用了。

大鹅家不常做饭,油烟机吸力够用,厨房和生活阳台之间还有一门之隔,衣服晾在这里也不担心会有油烟味。

05
开放式书房

大鹅家书房朝西,客厅朝东,为了提升客厅采光,书房砸掉一面墙,改为开放式。
改造前 VS 改造后
▼


同时书房和客餐厅连为一体,成了屋主最喜欢,待的最久的空间。

书房定制了一整面开放式书架,可以满足屋主展示插画的需求。

这里附赠一条来自屋主的真诚提醒,开放式书架确实方便拿取物品,但也容易显乱,还是要根据自己的收纳、整理习惯来。
大鹅从事策划&策展,忙起来的话需要居家办公,特意买了升降书桌和人体工学椅,不累腰,肩颈也能舒服些。

书桌靠近的这面墙也是大鹅的手工小天地,利用洞洞板搭配S钩、收纳盒等,把手工用品、收集的明信片等小物件收纳的整整齐齐。
休息时在这里做手工、追剧、看书,简直太惬意了,巴适得板。

做手工用具、数据线、卡、化妆品小样这些易乱、易丢失的小物件通通分类整理,放在不同收纳箱里,并且写清标签。
一是容易找到,二是方便使用后物归原处,保持整洁。

06
主卧

卧室做了L型通顶柜,再加上有单独的衣帽间,放衣服、换季被子等储物空间完全够用。


进门处特意预留了开放格,方便放包包、帽子等,也可以放小饰品、摆件作为装饰。

屋主有睡前读书的习惯,床头两边都安排了小巧的床头柜,放书、手机、纸巾、护肤品都可。


晚上开床头吊灯的效果
▼


07
主卫

改造前,卫生间受开门方向和下水管道的影响,没办法安置浴室柜,怎么放都很尴尬。
改造前 VS 改造后
▼


比较好的办法是改变卫生间开门方向,但卫生间门会正对床,于是利用主卧L型定制柜,把卫生间门隐藏其中。
打开柜门,通往主卫
▼


卫生间门打开 VS 关闭
▼


从卫生间向外看
▼

主卫做了干湿分离,以免洗澡水溅的到处都是,洗澡后清洁起来更省力。

大鹅喜欢一边洗漱、护肤,一边看视频,特意定制了高低台的浴室柜。
台盆这边正常高度,旁边的柜子较高,方便放置护肤品、iPad、手机等。

08
衣帽间

把主卧对面的这间次卧改为衣帽间,大鹅说这么改,动线超级顺畅。
她每天起床后,先在主卫洗漱,然后到对面衣帽间化妆、换衣服,再到玄关处穿袜子、穿鞋,不需要来回折返,走冤枉路,特别省时间。


衣帽间没做定制柜,选用了金属衣架,环保、性价比高、布局更灵活。
最上层放换季衣服,下层放裤子、内衣,中间全部是悬挂区。裙子、衬衫、短袖能挂就挂,不担心有褶皱,拿取收纳都很方便。

担心衣服被晒到,特意定制了百叶窗,半打开时,光线映过来,光影效果绝美。

09
次卧

这间次卧布置相对简单,目前作为客房使用,父母来或者朋友偶尔留宿,有处可住;

床头摆了一个小茶几,方便客人放水杯、眼镜、书等物品。

10
次卫

两人常住,主卧有厕所,但大鹅家还是保留了次卫。
除了有客人来使用方便,也能避免平常着急上班,抢厕所的情况发生。

次卫同样做了干湿分离,装了淋浴房,避免洗澡水飞溅,更容易打扫。

湿区还砌了壁龛,方便放洗发水、沐浴露之类清洁用品。

今天的真实人家案例分享结束了,如果给了你装修灵感,记得点个赞支持一下!
全屋好物清单
客厅 多功能沙发 吱音 睡眠沙发床 6000左右
客厅 黄色单人沙发 吱音 高领单人沙发 3000左右
客厅 茶几 吱音 舒展茶几 3800左右
餐厅 餐边柜 吱音 直岛柜 15000左右
餐厅 餐桌 尖叫设计 布景桌子 2600左右
餐厅 餐椅 尖叫设计 燕尾椅子 1000左右
书房 升降桌 尖叫设计 NOMOS电动升降桌 2300左右
书房 办公椅 尖叫设计 NOMOS办公椅 2600左右
主卧 床头吊灯 Geled 迷你白色锥形小吊灯 288
衣帽间 金属衣柜 宜家 ELVARLI爱尔瓦丽 2000左右
衣帽间 全身镜 尖叫设计 云影全身镜 900左右
厨房 冰箱 松下 453L大白NR- EW45TGA 15000左右
生活阳台 洗烘 松下 10kg智洗+9kg变频烘 10000左右
版权声明:CosMeDna所有作品(图文、音视频)均由用户自行上传分享,仅供网友学习交流。若您的权利被侵害,请联系删除!
本文链接://www.cosmedna.com/article/284797261.html








 
                                             
                                             
                                             
                                             
                                             
                                             
                                             
                                             
                                             
                                             
                                         
                                         
                                         
                                         
                                         
                                         
                                         
                                         
                                         
                                         
                                         
                                         
                                         
                                         
                                         
                                        