什么?!
这也有人造假?

▲假冒伪劣灭火器被查获
前段时间,江苏南京警方破获了一起销售假冒伪劣灭火器案,抓获犯罪嫌疑人3人,查封仓库1个,查获假冒伪劣灭火器10000余件,涉案金额达30余万元。

火灾发生时
使用假冒伪劣消防产品
不仅起不到正常的防灭火作用
还可能因此延误灭火救援
导致更严重的事故

▲资料图:集中销毁假冒伪劣灭火器
那么如何炼就火眼金睛
明辨真伪呢?
今天阿消带来超详细的攻略
快来收藏学习吧

消防产品如何分类
根据《消防产品目录(2022年修订本)》,主要包括以下两类消防产品(建筑消防设施、消防救援装备):
01
建筑消防设施:
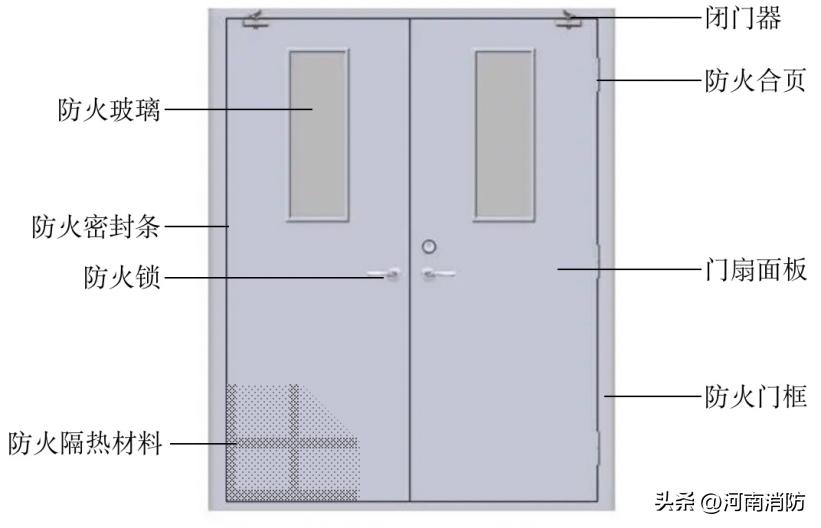
火灾报警系统、灭火器、避难逃生设施、固定灭火系统、防烟排烟设施、建筑耐火构件、防火材料、特殊领域消防设施。
02
消防救援装备:
消防车辆、消防水域救援装备、消防无人装备、灭火作战器材、抢险救援装备、消防员个人防护装备、灭火剂、消防通讯设备、消防侦检器材、水域救援器材、特殊领域消防设施。

消防产品市场准入制度有哪些
01
强制性认证制度
强制性产品认证(CCC认证)是国家依法实施的产品评价制度。凡列入强制性认证目录的消防产品,必须经国家指定的认证机构认证合格、取得指定认证机构颁发的认证证书并加施认证标志后,方可出厂销售、进口和在经营性活动中使用。目前实施强制性认证的消防产品包括三大类(火灾报警产品、灭火器、避难逃生产品):
火灾报警产品:点型感烟火灾探测器、点型感温火灾探测器、独立式感烟火灾探测报警器、手动火灾报警按钮、点型紫外火焰探测器、特种火灾探测器、线型光束感烟火灾探测器、火灾显示盘、火灾声和/或光警报器、火灾报警控制器、家用火灾报警产品。
灭火器:手提式灭火器、推车式灭火器、简易式灭火器。
避难逃生产品:消防应急照明和疏散指示产品、逃生产品、自救呼吸器、消防安全标志。
对符合国家标准、行业标准,未列入国家强制性认证目录的消防产品,鼓励企业进行自愿性认证。
02
技术鉴定制度
新研制的尚未制定国家标准、行业标准的消防产品,实施消防产品技术鉴定制度。在消防产品技术鉴定证书有效期内,相关消防产品的国家标准、行业标准颁布实施的,生产者应当保证生产的消防产品符合国家标准、行业标准。
03
公告管理制度
国产消防车产品在中华人民共和国境内生产、销售、使用的,应当根据《专用汽车和挂车生产企业及产品准入管理规则》,通过专用车生产企业及专用车产品行政许可,并被工业和信息化部列入《道路机动车辆生产企业及产品公告》。

消防产品真伪如何辨别
01
核“认证证书”
对实施强制性认证、技术鉴定制度的消防产品,查看消防产品是否取得强制性产品认证证书、技术鉴定证书,可登录中国消防产品信息网(www.cccf.com.cn)核对证书的真实性。

02
校“产品一致性”
对市场准入证明文件所描述的消防产品的外观、标志、规格型号、结构部件、材料、性能参数、生产厂名、厂址与产地、产品实物等是否与强制性产品认证证书、技术鉴定证书及其型式检验(型式试验)报告相一致。


03
查“检验证明”
按照相关法律法规,强制性国家标准或者行业标准的规定需要进行型式检验和出厂检验的消防产品,查看是否具备型式检验合格的检验报告和出厂检验合格的证明文件。


04
验“身份信息”
对获得市场准入的消防产品,可登录应急管理部消防产品合格评定中心(http://www.cccf.net.cn/lxxx),在“消防产品流向信息查询系统”栏目中输入红色身份标志14位明码,或用手机扫一下消防产品身份信息标志上的二维码,便可查询到消防产品规格型号、生产日期、生产批号、产品编号、产品流向等基本信息,如查询无信息或信息不一致即视为不合格产品。



050
看“外观性能”
目测产品的铭牌标志是否清晰、准确,外观标志是否完整、无破损、无锈蚀,结构部件是否齐全、牢固,试验产品性能参数是否符合技术要求。



希望今天讲的内容对大家有帮助
购买时一定要擦亮眼睛
单位和个人配置消防产品
方能有备无患
但阿消希望,你永远也用不到它们!
祝福大家都平平安安

来源:中国消防 综合网络
版权声明:CosMeDna所有作品(图文、音视频)均由用户自行上传分享,仅供网友学习交流。若您的权利被侵害,请联系删除!
本文链接://www.cosmedna.com/article/427924817.html







